Dans un environnement urbain oĂą l’espace devient une ressource de plus en plus prĂ©cieuse, exploiter les combles de sa maison s’impose comme une solution ingĂ©nieuse pour maximiser la surface habitable. Cet espace sous toiture, souvent dĂ©laissĂ©, recèle un potentiel considĂ©rable pour ceux qui souhaitent agrandir leur logement sans entreprendre de travaux lourds ou coĂ»teux. En ĂŽle-de-France, oĂą le prix au mètre carrĂ© oscille frĂ©quemment Ă la hausse, transformer les combles en espaces de vie fonctionnels apparaĂ®t comme une dĂ©marche Ă la fois Ă©conomique et valorisante pour le patrimoine immobilier.
Outre l’accroissement de la surface habitable, l’amĂ©nagement des combles participe Ă l’amĂ©lioration du confort thermique du logement grâce Ă une meilleure isolation, tout en embellissant l’intĂ©rieur par un agencement crĂ©atif et personnalisĂ©. Que ce soit pour installer une chambre supplĂ©mentaire, un bureau adaptĂ© au tĂ©lĂ©travail ou un espace loisirs convivial, les possibilitĂ©s qu’offrent les combles sont variĂ©es et souvent mĂ©connues. Il s’agit ainsi d’un vĂ©ritable levier pour optimiser l’espace, apportant une nouvelle dynamique Ă l’habitat.
En parallèle, la réglementation en vigueur encadre strictement ces travaux, depuis la validation de la faisabilité jusqu’aux démarches administratives, ce qui implique une préparation rigoureuse et un respect des normes actuelles d’urbanisme et d’habitat. Que vous soyez propriétaire d’un appartement parisien ou d’une maison en banlieue, découvrir les techniques et solutions pour un aménagement réussi des combles vous permettra d’en tirer le meilleur parti tout en valorisant votre bien.
Les avantages incontournables de l’aménagement de combles pour gagner de l’espace
Aménager vos combles ne se résume pas à créer du volume supplémentaire ; c’est également une opportunité d’améliorer la qualité de vie chez soi. Le premier avantage tangible est sans conteste le gain d’espace habitable. Les combles transformés peuvent accueillir divers usages selon vos besoins :
- Une chambre parentale avec rangements intégrés optimisant chaque angle
- Un bureau lumineux favorisant concentration et productivité
- Une salle de jeux pour enfants éloignée des pièces à vivre principales
- Un espace de loisirs ou mĂŞme un salon cosy pour recevoir
Ce nouveau volume permet donc une adaptation dynamique du logement aux modes de vie contemporains, notamment pour répondre aux exigences du télétravail ou à l’accueil d’une famille grandissante.
Sur le plan économique, aménager les combles est une solution souvent plus accessible qu’une extension classique. Le coût au mètre carré est inférieur, surtout parce que les travaux lourds comme la construction de fondations nouvelles ne sont pas nécessaires. Par ailleurs, cet aménagement valorise significativement votre propriété : le marché immobilier parisien et francilien reconnaît l’intérêt d’une surface habitable optimisée sous les toits, ce qui se traduit par une plus-value appréciable à la revente.
L’aspect thermique est aussi Ă considĂ©rer. La toiture Ă©tant un point majeur de dĂ©perdition Ă©nergĂ©tique, une rĂ©novation incluant une isolation performante amĂ©liore le confort hiver comme Ă©tĂ©, tout en abaissant la facture Ă©nergĂ©tique. Le renforcement ou la pose d’une isolation naturelle, biosourcĂ©e ou synthĂ©tique, permet d’associer Ă©conomies et respect de l’environnement.
| Avantages | Description | Impact |
|---|---|---|
| Gain de surface | Transformation des combles en pièce à vivre | Augmentation significative de la surface habitable |
| Valorisation du bien | Plus-value immobilière notable | Meilleure attractivité sur le marché |
| Amélioration thermique | Isolation performante | Meilleur confort, réduction des coûts énergétiques |
| Coût maîtrisé | Moins cher qu’une extension classique | Investissement rentable |
Au regard de ces multiples bénéfices, l’aménagement des combles s’impose comme une solution pérenne et stratégique pour optimiser l’espace sans compromis sur l’esthétique ou le confort du logement.

Techniques et critères essentiels pour aménager efficacement vos combles
Avant de s’engager dans un projet de transformation, l’analyse précise de l’espace sous toiture est indispensable. Plusieurs critères conditionnent la réussite de l’aménagement :
- Hauteur sous plafond : Une hauteur minimale de 1,80 à 2,20 mètres est requise afin de garantir une utilisation confortable et conforme à la législation.
- Structure de la charpente : Les combles avec charpente traditionnelle sont souvent plus adaptés que ceux équipés de fermettes industrielles. Un diagnostic approfondi permet de déterminer si des modifications sont nécessaires pour supporter la charge.
- Solidité du plancher : Le plancher doit être renforcé pour accueillir des revêtements, équipements et mobilier lourds, assurant sécurité et durabilité.
Dans le cadre de l’optimisation des espaces, penser l’aménagement en intégrant le mobilier sur mesure s’avère particulièrement judicieux. L’intégration de placards encastrés, d’étagères sous pente et de solutions modulables permet de tirer le maximum de rangement des zones à faible hauteur, lesquelles sont souvent difficiles à exploiter autrement.
L’isolation est une phase-clé du projet. Deux méthodes principales se distinguent :
- Isolation intérieure : Plus économique et simple, elle utilise des matériaux tels que la laine de verre ou la ouate de cellulose, et se fait généralement entre chevrons.
- Isolation extérieure ou sarking : Technique offrant une meilleure performance thermique en éliminant les ponts thermiques, bénéficiant cependant d’un coût plus élevé et d’une intervention plus lourde.
Enfin, l’apport de lumière naturelle est un facteur déterminant dans la perception de l’espace. L’installation de fenêtres de toit type Velux, puits de lumière ou lanterneaux maximise la luminosité et contribue à rendre les combles agréables en toutes saisons.
| Critère | Importance | Solutions associées |
|---|---|---|
| Hauteur sous plafond | Essentielle pour habitabilité | Respect législatif, choix fonctionnel du mobilier |
| Charpente | Supporte la charge des travaux | Modification ou renforcement selon diagnostic |
| Plancher | Sécurité et stabilité | Renfort structurel |
| Isolation | Confort thermique et acoustique | Isolation intérieure ou sarking |
| Luminosité | Ambiance et confort visuel | Fenêtres de toit, puits de lumière |
Chacune de ces étapes impacte directement la qualité finale de l’espace aménagé et sa capacité à être un prolongement naturel et fonctionnel de votre logement.
Solutions pratiques pour un aménagement intérieur optimal des combles
L’aménagement intérieur de vos combles doit conjuguer fonctionnalité avec esthétique pour créer un espace accueillant et adapté à vos besoins. Plusieurs astuces permettent de maximiser le potentiel de cette zone souvent complexe :
- Mobilier sur mesure : Agencements adaptés aux formes atypiques, notamment sous pente.
- Rangements intégrés : Utilisation judicieuse des zones basses pour y insérer des placards encastrés ou des tiroirs coulissants.
- Solutions modulables : Meubles pliants ou escamotables pour optimiser chaque mètre carré selon l’usage.
- Utilisation de couleurs claires : Pour agrandir visuellement l’espace et accentuer la luminosité.
- Zones bien délimitées : Définir distinctement les espaces de vie (coin nuit, travail, détente) pour une utilisation fluide.
En outre, intégrer des matériaux naturels comme le bois, le liège ou la laine dans la décoration promeut une ambiance chaleureuse, chaleureuse et propice au bien-être. Ces éléments contribuent à créer un espace harmonieux, efficace et apaisant.
Le choix de l’éclairage est également déterminant, surtout dans les recoins peu exposés à la lumière naturelle. Des spots encastrés, des lampes à variateur ou des rubans LED peuvent renforcer la convivialité et agrandir visuellement la pièce.
| Astuce d’aménagement | Avantages | Exemple |
|---|---|---|
| Mobilier sur mesure | Optimal pour espaces atypiques | Placards sous pente, bureaux adaptés |
| Rangement intégré | Utilisation maximale de l’espace | Tiroirs coulissants, étagères encastrées |
| Couleurs claires | Agrandissement visuel | Peinture blanche ou pastel |
| Éclairage adapté | Confort et ambiance | LED dimmables, spots encastrés |
Pour dĂ©couvrir davantage de conseils sur l’optimisation de l’espace dans les combles, des ressources dĂ©taillĂ©es vous accompagneront dans votre projet.

Aménagement des combles : la gestion de la lumière naturelle et artificielle
La lumière joue un rôle crucial dans l’ambiance des combles. Bien la gérer permet non seulement d’embellir l’espace mais aussi d’améliorer le confort et la fonctionnalité au quotidien. Plusieurs approches facilitent l’optimisation lumineuse :
- Installation de fenêtres de toit ou Velux : Permet d’apporter un éclairage naturel direct et de favoriser la ventilation.
- Puits de lumière : Un apport lumineux central, idéal pour les combles profonds ou éloignés des façades.
- Utilisation de surfaces réfléchissantes : Miroirs ou matériaux clairs qui diffusent la lumière dans toute la pièce.
- Éclairage artificiel multi-source : Combinaison de plafonniers, lampes d’appoint et rubans LED pour un éclairage modulable selon les activités.
Dans le contexte d’une rénovation, l’intégration de sources lumineuses modernes avec des fonctionnalités avancées comme la motorisation automatique des fenêtres ou des volets intégrés apporte un confort supplémentaire. Ces innovations fluidifient l’usage de l’espace et apportent une touche contemporaine.
| Solution lumineuse | Avantages | Recommandations |
|---|---|---|
| Fenêtres de toit type Velux | Apport important de lumière naturelle | Choisir vitrage isolant et volets motorisés |
| Puits de lumière | Lumière diffuse dans les espaces sombres | Prévoir entretien régulier |
| Miroirs et surfaces réfléchissantes | Agrandissement visuel | Positionnement stratégique |
| Éclairage artificiel | Modularité et ambiance | Utiliser variateurs d’intensité |
Les démarches administratives et réglementations pour aménager les combles sereinement
Pour que votre projet d’amĂ©nagement de combles respecte les normes et soit lĂ©galement validĂ©, certaines dĂ©marches sont indispensables :
- Déclaration préalable de travaux : Obligatoire si la surface créée est inférieure à 40 m².
- Permis de construire : Nécessaire au-delà de 40 m² ou en cas de modification importante de l’aspect extérieur.
- Respect du Plan Local d’Urbanisme (PLU) : Règle essentielle à vérifier auprès de la mairie, notamment en zones protégées ou copropriétés.
- Conformité aux règles de copropriété : Dans le cas d’un immeuble, il est important de consulter le règlement pour éviter tout conflit.
Ces étapes garantissent que l’aménagement sera en harmonie avec l’environnement et conforme aux exigences légales, évitant ainsi d’éventuels recours ou sanctions.
| Type de formalité | Surface concernée | Cas d’application |
|---|---|---|
| Déclaration préalable | Moins de 40 m² | Travaux légers, modification toiture |
| Permis de construire | Plus de 40 m² | Extension ou modification importante |
Pour un accompagnement complet dans ces démarches et une planification optimisée, le recours à une entreprise de rénovation spécialisée facilite grandement le processus.
Estimations budgétaires et aides financières pour l’aménagement des combles
Le budget constitue souvent un point d’attention majeur dans tout projet d’aménagement des combles. Il regroupe les coûts des matériaux, de la main-d’œuvre, des modifications structurelles et des finitions. En 2025, une estimation moyenne par mètre carré oscille généralement entre 1000 et 2000 euros selon la complexité et les matériaux sélectionnés.
Les coûts varient en fonction de plusieurs facteurs :
- Type d’isolation choisi
- Travaux de renforcements structurels éventuels
- Installation de plomberie ou d’électricité
- Qualité des matériaux et finitions
- Ouverture de fenêtres et système d’accès aux combles
Ces éléments doivent être évalués précisément avant de lancer les travaux, pour éviter toute mauvaise surprise. Il est recommandé de consulter plusieurs devis pour comparer et choisir la meilleure solution adaptée à votre budget. Pour un aperçu détaillé des coûts, des guides spécialisés proposent une analyse complète des postes de dépense : vous pouvez consulter notamment cet article dédié sur l’évaluation du coût d’aménagement des combles.
| Poste de dépense | Coût estimé moyen |
|---|---|
| Isolation | 150 – 250 €/m² |
| Plancher et charpente | 500 – 800 €/m² |
| FenĂŞtres de toit et menuiseries | 250 – 400 €/unitĂ© |
| Finitions intĂ©rieures | 300 – 500 €/m² |
| Main-d’œuvre | Variable selon prestataire |
Les aides financières disponibles, notamment les subventions liées à la rénovation énergétique et les prêts à taux zéro, sont des leviers intéressants afin d’améliorer la rentabilité de votre investissement. Pour en savoir plus sur les aides actuelles et conditions, rendez-vous sur les ressources officielles ou contactez une entreprise spécialisée.

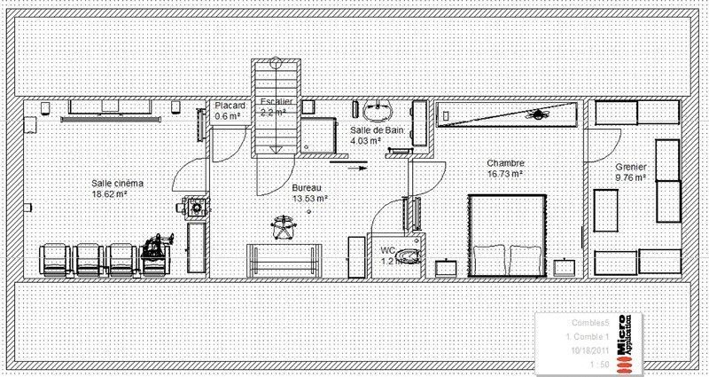
Les meilleures idĂ©es d’amĂ©nagement pour profiter pleinement de vos combles
La crĂ©ativitĂ© est un ingrĂ©dient essentiel pour optimiser l’usage des combles. Voici quelques idĂ©es inspirantes pour transformer cet espace en un Ă©lĂ©ment clĂ© de votre maison :
- Chambre chaleureuse : exploitez les plafonds bas pour y incorporer des rangements encastrés et créez une atmosphère intime et reposante.
- Bureau fonctionnel : espace calme et lumineux, idéal pour travailler à domicile ou pour des activités créatives.
- Salle familiale ou salon cosy : lieu de détente avec canapés modulables et éclairage d’ambiance.
- Chambre d’amis ou espace indépendant : pouvant accueillir visiteurs ou proposer un logement autonome.
- Zone multimédia ou salle de cinéma maison : pour vivre des moments conviviaux en famille.
Il est Ă©galement possible d’intĂ©grer des mezzanines pour crĂ©er un effet de volume et conserver une circulation fluide dans votre espace combles. Le choix d’amĂ©nagement doit toujours s’adapter Ă vos besoins personnels, en tirant parti de chaque spĂ©cificitĂ© de votre bâti.
| Type d’aménagement | Caractéristiques | Avantages |
|---|---|---|
| Chambre | Espaces cosy avec rangements intégrés | Confort et valorisation du bien |
| Bureau | Lumière naturelle optimale, espace calme | Productivité et sérénité |
| Salle de loisirs | Zone détente avec équipements multimédia | Convivialité et multifonctionnalité |
| Mezzanine | Ouverture sur l’espace inférieur | Effet volume et fluidité de circulation |
Convertisseur de volume habitable de vos combles
Calculez le volume habitable créé par l’aménagement de vos combles : entrez la hauteur sous plafond, la surface et la pente de toit pour estimer précisément votre projet en m³.
Comment choisir une entreprise spécialisée en aménagement de combles en Île-de-France
Le choix d’un expert pour vos travaux d’aménagement est une étape clé garantissant la réussite de votre projet. À Paris et en Île-de-France, plusieurs critères permettent de sélectionner une entreprise fiable et compétente :
- Expérience avérée : privilégierez une entreprise familiale disposant de plusieurs années de savoir-faire dans la rénovation intérieure.
- Accompagnement sur mesure : une prestation personnalisée tenant compte de vos attentes et contraintes.
- Travaux clés en main : pour un suivi complet de votre chantier, de la conception à la finition.
- Réactivité et proximité : importance d’une relation de confiance avec un interlocuteur local.
- Satisfaction client : témoignages et références attestant du sérieux et de la qualité des réalisations.
Se tourner vers une entreprise locale en Île-de-France offre l’avantage d’une meilleure adaptation aux règles régionales et une rapidité d’interventions, indispensable pour limiter les délais. Pour plus d’informations sur les offres et tarifs, consultez des sites reconnus spécialisés dans l’aménagement des combles et la rénovation intérieure.
Quelle hauteur sous plafond est nécessaire pour aménager des combles ?
Une hauteur minimale comprise entre 1,80 m et 2,20 m est généralement requise pour rendre les combles habitables dans le respect des normes en vigueur.
Faut-il un permis de construire pour l’aménagement des combles ?
Si la surface ajoutée dépasse 40 m², un permis de construire est nécessaire. En dessous, une déclaration préalable de travaux suffit dans la plupart des cas.
Quelles sont les meilleures options d’isolation pour les combles ?
L’isolation intérieure est la plus répandue pour son rapport qualité-prix, tandis que le sarking (isolation extérieure) offre une performance thermique supérieure mais à un coût plus élevé.
Comment optimiser le rangement dans un espace sous pente ?
Utiliser des meubles sur mesure, des placards encastrés et exploiter les zones basses difficilement accessibles permet de maximiser le rangement sans encombrer l’espace.
Existe-t-il des aides financières pour l’aménagement des combles ?
Oui, plusieurs aides comme le crédit d’impôt pour la transition énergétique, l’éco-PTZ et les subventions de l’ANAH peuvent réduire le coût des travaux sous conditions.























