09 77 77 41 64

plan garage parpaing

Faire un devis travaux renovation sur Paris et IDF : 09 77 77 41 64

Démarrer ma demande de devis

 Gratuit et sans engagement
67c18e82ce5bcf1c77b80f0b_AvisClients-Clean-All-black-768x384-2

Table des matieres

Facebook
Twitter
LinkedIn
Email
X
Telegram

Construire un garage en parpaing représente une solution à la fois solide et économique pour abriter votre véhicule, stocker vos outils ou aménager un atelier personnel. Ce matériau traditionnel, largement utilisé dans la construction en Île-de-France, combine robustesse et simplicité d’utilisation, ce qui en fait un choix privilégié pour les projets de rénovation et de construction sur mesure. Élaborer un plan garage parpaing adapté à vos besoins permet de garantir non seulement la fonctionnalité de l’espace mais aussi sa durabilité et son intégration harmonieuse dans votre propriété.

Avec l’évolution des normes et des techniques de construction en 2025, planifier soigneusement la construction d’un garage devient une étape incontournable pour assurer une mise hors d’eau et hors d’air efficace, avec un respect strict des réglementations locales à Paris et en Île-de-France. Découvrez dans cet article les différentes facettes du choix du parpaing, la structuration du projet, ainsi que des conseils pratiques pour optimiser votre espace et anticiper les contraintes techniques.

Les fondations du garage en parpaing : base essentielle pour une construction pérenne

Le fondation garage est l’une des étapes cruciales de la construction. Pour que votre garage soit solide et durable, il faut impérativement commencer par une fondation adaptée au type de sol et aux contraintes de charge spécifiques au bâtiment. En région parisienne, où les sols peuvent varier entre argileux et calcaires, une étude préalable est souvent nécessaire, notamment pour déterminer la profondeur des semelles filantes ou envisager des solutions alternatives comme les pieux, si le sol est instable.

Le processus débute par un traçage précis de l’emplacement des murs par spray de peinture, suivi du creusement du sol sur toute la surface déterminée. L’excavation doit respecter strictement les limites cadastrales, sans empiéter sur le terrain voisin. Le recours à un niveau laser assure une parfaite planéité et hauteur conforme au calepinage préalablement défini pour aligner la hauteur du futur dallage avec le niveau 0 de référence, souvent le plancher de la maison adjacente.

Une fois le terrain prêt, un béton de propreté est coulé pour créer un socle propre, sur lequel seront disposées les armatures en acier avant le coulage définitif du béton de fondation. Ce béton doit souvent respecter des normes spécifiques en fonction des éventuelles contraintes parasismiques, renforçant ainsi la sécurité et la longévité de la construction. Il est important d’appliquer un traitement anti-termites afin de protéger les matériaux contre les agressions biologiques.

Un bon dimensionnement des fondations assure la stabilité du mur parpaing, qui reposera sur cette base inébranlable. Ce socle est indispensable pour supporter les charges verticales et latérales sans déformation ni tassement. Le respect de ces étapes garantit un chantier sans mauvaises surprises et réduit les coûts liés aux éventuelles réparations futures.

découvrez nos plans détaillés de garage adaptés à vos besoins, avec des designs modernes et fonctionnels pour optimiser votre espace.

Concevoir un plan garage parpaing : étapes clés pour un projet réussi

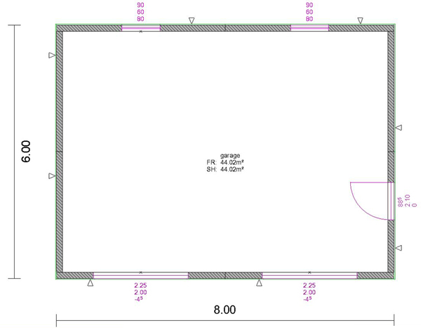
La conception d’un plan garage parpaing débute par la définition des besoins précis : nombre de véhicules à accueillir, espace de rangement, accès et ouverture. En Île-de-France, et particulièrement à Paris, la surface et le style doivent souvent s’adapter à la configuration des terrains et aux règles d’urbanisme. Ainsi, un garage classique de 20 m² est un bon compromis entre fonctionnalité et respect des contraintes.

Le plan doit prendre en compte plusieurs facteurs techniques. L’implantation de la construction est matérialisée sur le terrain avec des instruments spécialisés tels que le niveau laser et le théodolite. Les « chaises d’implantation » sont placées aux angles du futur bâtiment, permettant de tirer des cordeaux qui représenteront fidèlement le tracé des murs porteurs.

Le calepinage détermine ensuite la hauteur du garage, en intégrant les différentes couches superposées : fondations, isolation, dallage, chape et, éventuellement, un revêtement de sol. Cette étape est essentielle pour que le niveau du plancher soit aligné avec celui de la maison ou des infrastructures existantes.

En savoir+  modele devis maconnerie

Avec l’avènement des logiciels gratuits accessibles en ligne, comme Planner 5D ou d’autres outils de modélisation, il est désormais possible de dessiner un plan clair et complet. Ces applications permettent de visualiser l’agencement, l’espace et même de prévoir les ouvertures, optimisant ainsi l’aménagement intérieur et extérieur du futur garage.

Pour ceux qui souhaitent s’assurer d’une conception parfaite, faire appel à une entreprise spécialisée telle que Watt+ Père & Fils garantit un plan conforme aux normes et un accompagnement personnalisé. Ce service peut inclure un accompagnement complet, de la conception à la remise des clés, avec toutes les étapes de construction garage bien maîtrisées.

Liste des éléments à prévoir dans votre plan garage en parpaing :

  • Dimensions précises du garage et des ouvertures (porte et fenêtre)
  • Positionnement des fondations et dalle béton
  • Prévoir la fixation du kit garage parpaing si achat de solution préfabriquée
  • Choix du type de toit garage parpaing : toit plat ou toiture inclinée
  • Gestion de l’isolation thermique et acoustique
  • Organisation des accès et des ouvertures (porte basculante, coulissante, fenêtre)
  • Prévoyance d’un système de drainage pour éviter l’humidité excessive

Quel budget pour construire un garage parpaing à Paris et en Île-de-France ?

Établir un budget réaliste est une étape incontournable afin d’éviter les mauvaises surprises. Le coût moyen pour la construction d’un garage en parpaing se situe entre 700 et 800 € par m², en incluant les matériaux principaux (parpaings, dalle béton), la charpente classique type fermette, l’enduit extérieur, et la porte de garage basculante.

Il est important de noter que ce tarif dépend fortement des spécificités du terrain, de la complexité des travaux liés au dallage garage et à la fondation, ainsi que de la localisation géographique. Par exemple, le coût horaire d’un maçon à Paris et dans la région Île-de-France est plus élevé que dans certaines zones rurales, ce qui peut augmenter le budget final.

Voici une estimation globale en fonction de la surface construite :

Superficie du garage (m²) Prix global approximatif (hors main d’œuvre)
15 10 500 € à 12 000 €
20 14 000 € à 16 000 €
40 28 000 € à 32 000 €
60 42 000 € à 48 000 €

Pour étayer ces chiffres, les prestations comprises incluent la mise hors d’eau et hors d’air, la pose d’une porte standard et une fenêtre simple. Le recours à un professionnel assure un travail conforme aux normes, avec garantie décennale, ce qui apporte une tranquillité d’esprit indispensable.

Envisagez également de consulter d’autres articles comme prix construction garage 2025 pour obtenir une vision complète des coûts et des options disponibles.

découvrez nos plans de garage personnalisés pour optimiser l'espace de votre maison. solutions sur mesure adaptées à vos besoins et à votre style.

Les étapes pour construire un garage en parpaing : guide détaillé

La construction d’un garage en parpaing suit un processus précis, divisé en douze étapes fondamentales. Cette méthode garantit une structure solide, conforme aux attentes et aux normes en vigueur. Les premières étapes concernent la planification et la préparation du terrain :

  1. Avant-projet : Réalisation du plan, souvent requis pour la demande de permis de construire.
  2. Implantation : Délimitation sur le sol à l’aide d’équipements spécialisés (niveau laser, théodolite).
  3. Calepinage : Détermination du niveau de construction et des hauteurs à respecter.
  4. Décapage : Enlèvement de la couche végétale sur la zone.
  5. Fondations : Creusement, coffrage et coulage du béton, avec traitement anti-termites.
  6. Montage des agglos (parpaings) de fondation : Mise en place sur lit mortier hydrofuge.
  7. Dallage : Pose des planelles, remblayage et coulage de la dalle avec isolation.
  8. Drain périphérique : Installation d’un système d’évacuation des eaux autour du bâtiment.
  9. Édification des murs en parpaing : Pose des linteaux et joints de dilatation si nécessaire.
  10. Couverture : Pose de charpente et du toit garage parpaing (toit plat ou incliné).
  11. Mise hors d’eau/hors d’air : Installation des portes et fenêtres.
  12. Aménagement intérieur : Isolations, revêtements et finitions.
En savoir+  garage accolé toit plat

Chaque étape doit être exécutée avec soin, idéalement par des professionnels qualifiés, pour une meilleure maîtrise des techniques et un respect total des normes de construction. Pour en savoir plus, consultez le dossier sur la construction garage prix.

Optimiser l’aménagement de votre garage en parpaing selon vos besoins

Au-delà de la structure brute, l’aménagement garage est un facteur clé pour tirer le meilleur parti de cet espace. Que vous souhaitiez transformer ce lieu en atelier, stockage, ou même en espace de vie, une planification adaptée est essentielle.

Pour ceux qui envisagent la transformation d’un garage en espace habitable, plusieurs solutions existent. Par exemple, transformer un garage en chambre ou en suite parentale est un projet de plus en plus fréquent à Paris, surtout quand les mètres carrés se font rares. Dans ce cas, l’isolation, la ventilation et le traitement des ouvertures doivent être réfléchis dès l’étape de la construction.

Lorsque l’objectif reste un garage traditionnel, il est possible d’optimiser le rangement grâce à des meubles sur mesure, des étagères résistantes et des solutions de fixation murales pour dégager le sol. La bonne organisation permet de libérer de la place pour circuler aisément et protéger au mieux les biens entreposés.

De plus, il est possible d’envisager une installation modulable comprenant une mezzanine ou un accès sécurisé, selon la hauteur du mur parpaing et les dimensions garage disponibles. Ce type d’aménagement permet de maximiser la surface, surtout dans les petite constructions, typiques des zones urbaines d’ÃŽle-de-France.

découvrez nos plans de garage adaptés à tous vos besoins : construction, extension ou aménagement. trouvez le plan idéal pour optimiser votre espace et protéger votre véhicule.

Avantages et limites du parpaing pour la construction de garage

Le choix du parpaing s’explique par une série d’avantages incontestables. Ce matériau est réputé pour sa résistance mécanique, sa capacité à supporter les charges lourdes et sa facilité de mise en œuvre, ce qui en fait un favori des artisans en rénovation à Paris. De plus, son coût relativement bas comparé à d’autres matériaux de construction participe à sa popularité.

Le mur parpaing, une fois mis en place, offre une base idéale pour appliquer des finitions variées : crépis, peinture, enduits isolants ou décoratifs. Ce matériau s’adapte parfaitement aux projets sur mesure et aux travaux clés en main proposés par des spécialistes comme Watt+ Père & Fils.

Cependant, le parpaing présente aussi quelques contraintes. Son inertie thermique est limitée, ce qui nécessite souvent d’ajouter une isolation extérieure ou intérieure pour garantir un confort optimal. Par ailleurs, la pose doit être rigoureuse pour éviter les ponts thermiques et assurer l’étanchéité à l’eau et à l’air. Enfin, le mur en parpaing peut nécessiter un entretien spécifique en cas d’exposition prolongée aux intempéries si l’enduit protecteur vient à s’altérer.

Malgré ces quelques limites, avec une bonne conception et une mise en œuvre professionnelle, cette technique reste l’une des plus efficaces pour une construction durable et économique, particulièrement adaptée aux conditions spécifiques de l’agglomération parisienne.

Les dimensions garage idéales pour un usage optimal

Définir les dimensions garage est une étape délicate qui nécessite de prendre en compte plusieurs paramètres : type et nombre de véhicules, besoin de stockage, circulation et accessibilité. En général, un garage simple pour une voiture mesure environ 3 mètres de largeur sur 5 à 6 mètres de longueur, soit environ 15 à 20 m², ce qui correspond à un format standard très utilisé.

Pour un garage double, les dimensions commencent à 6 mètres de largeur pour une profondeur similaire, ce qui porte la surface à environ 36 m². Ces mesures permettent non seulement d’accueillir deux voitures mais également d’avoir de l’espace pour ouvrir les portes et circuler autour des véhicules.

En savoir+  garage accolé 3 murs prix

Il faut aussi penser à prévoir la hauteur sous plafond, souvent autour de 2,30 à 2,50 mètres, pour permettre un confort d’usage et des possibilités d’aménagement supplémentaires comme des étagères ou une mezzanine. Le choix des dimensions a un impact sur le plan, la construction des fondations, le mur parpaing mais aussi sur le dallage garage et la charpente.

Aux dimensions standards s’ajoutent des éléments à considérer lors de la conception des plans de construction, comme le placement de la porte de garage, la fenêtre, et la prise en compte des marges nécessaires lors de l’orientation du garage pour faciliter l’entrée et la sortie du véhicule.

Pour vous aider à dimensionner et planifier votre garage, n’hésitez pas à utiliser nos ressources dédiées, comme l’article sur prix aménagement garage ou encore des guides pratiques accessibles sur notre site.

Calculateur de garage en parpaing

Entrez la surface souhaitée (en m²), choisissez votre type de toiture, et obtenez une estimation budgétaire personnalisée.

Saisissez une surface entre 5 et 200 m²
Chaque type a un coût différent au m²

Adopter une démarche professionnelle pour garantir la réussite de votre construction garage

Le choix de confier la construction de votre garage en parpaing à une entreprise spécialisée comme Watt+ Père & Fils est une garantie de qualité et de sérénité. En effet, un artisan qualifié assure la conformité du chantier aux normes en vigueur, procède aux études nécessaires comme l’étude de sol ou parasismique, et dispose des assurances obligatoires, notamment la garantie décennale.

Déléguer à un professionnel permet aussi de bénéficier d’un accompagnement sur mesure pour adapter les plans de construction à vos besoins spécifiques, et pour intégrer des solutions innovantes comme des portes de garage motorisées, ou des systèmes de récupération d’eau avec drainage adapté.

Vous pouvez aussi profiter de conseils précieux pour l’aménagement post-construction, y compris pour garage semi enterré et d’autres solutions sur mesure, afin d’optimiser l’ergonomie et la fonctionnalité de votre espace garage.

Quelque soit la nature de votre projet, une entreprise professionnelle vous offre un service complet, depuis l’élaboration du devis gratuit et personnalisé jusqu’à la remise des clés, en assurant une intervention rapide à Paris et en Île-de-France, avec la qualité et la fiabilité indispensable.

Quels sont les avantages d’un garage en parpaing ?

Le garage en parpaing est reconnu pour sa solidité, son coût abordable, et sa capacité à facilement s’adapter à divers styles architecturaux. Il permet aussi un large choix de finitions et d’aménagements possibles.

Quelle est la surface minimale pour construire un garage sans permis ?

Selon la réglementation d’urbanisme en vigueur, un garage d’une surface inférieure à 20 m² peut être construit sans permis de construire, sous réserve d’une déclaration préalable de travaux.

Comment choisir les fondations pour un garage en parpaing ?

Le choix des fondations dépend du type de sol : pour un sol stable, des semelles filantes classiques suffisent, tandis qu’un sol argileux ou instable peut nécessiter des fondations renforcées ou sur pieux, définies après une étude de sol.

Est-il possible de transformer son garage en espace habitable ?

Oui, avec une isolation adéquate et une adaptation des ouvertures, il est tout à fait possible de transformer un garage en chambre ou suite parentale, projets courants à Paris où l’espace est limité.

Quel professionnel contacter pour construire un garage en parpaing ?

Il est recommandé de faire appel à une entreprise qualifiée spécialisée en rénovation et construction, telle que Watt+ Père & Fils, qui assure un suivi complet du chantier et la conformité aux normes.



Autre Articles

Travaux renovation 4.9 (98%) 22177 votes