Dans un contexte urbain oĂą l’espace est souvent une ressource prĂ©cieuse, la surĂ©lĂ©vation de maison s’impose comme une solution d’agrandissement innovante et durable. Ce procĂ©dĂ© technique permet aux propriĂ©taires de valoriser leur patrimoine immobilier sans empiĂ©ter sur le jardin ou le terrain, maximisant ainsi la surface habitable disponible. Ă€ Paris et en ĂŽle-de-France, oĂą les contraintes foncières sont particulièrement ressenties, ce type de rĂ©novation est de plus en plus prisĂ© pour rĂ©pondre aux besoins croissants d’espace sans pour autant dĂ©mĂ©nager. De la phase de conception du plan Ă la finalisation des travaux, chaque Ă©tape doit ĂŞtre soigneusement pensĂ©e pour une intĂ©gration harmonieuse et conforme aux règles d’urbanisme, tout en garantissant la soliditĂ© et le confort de la construction.
La surĂ©lĂ©vation n’est pas simplement un ajout d’étage ; elle constitue un vĂ©ritable projet d’architecture capable de transformer l’esthĂ©tique, la fonctionnalitĂ© et la valeur d’une habitation. Entre la sĂ©lection des matĂ©riaux, les exigences techniques, les dĂ©marches administratives et l’amĂ©nagement intĂ©rieur, ce guide complet vous accompagne Ă travers ce dĂ©fi technique aux multiples bĂ©nĂ©fices. Pour les propriĂ©taires souhaitant optimiser au mieux leur habitat, ce choix d’extension verticale reprĂ©sente une alternative intelligente, pĂ©renne et souvent plus Ă©conomique que l’achat d’une nouvelle maison.
Comprendre la surélévation de maison : principes et spécificités pour un plan réussi
La surélévation d’une maison consiste à ajouter un ou plusieurs niveaux au-dessus de la construction existante, sans toucher à l’emprise au sol initiale. Cette démarche complexe débute par la dépose ou la mise à nu de la toiture actuelle pour préparer le support de la nouvelle extension. La structure porteuse doit généralement être renforcée ou adaptée pour accueillir la charge supplémentaire tout en répondant aux normes de sécurité et à la réglementation locale d’urbanisme. L’élaboration d’un plan de surélévation sur-mesure est alors essentielle, intégrant la nouvelle ossature et définissant les espaces à créer.
Un plan bien conçu anticipe les contraintes techniques (hauteur maximale, poids de la structure), la visualisation esthétique (intégration architecturale avec la bâtisse existante) et les fonctionnalités (accès, luminosité, distribution des pièces). Par exemple, la surélévation partielle peut concerner la création d’un petit bureau, d’une salle de jeux ou d’une terrasse, tandis qu’une surélévation complète permet de doubler la surface habitable en ajoutant une étage entier.
La sélection des matériaux influe directement sur le plan d’exécution : le bois, très léger, est souvent privilégié pour ses qualités isolantes naturelles et sa facilité d’assemblage, tandis que le béton garantit robustesse et pérennité, bien qu’il nécessite des fondations renforcées. La possibilité d’adopter des structures mixtes (ossature bois avec éléments en acier) offre également des solutions novatrices pour modulariser l’espace avec un impact minimal sur la structure existante. Pour réussir cette étape, il est fortement recommandé de collaborer avec un architecte ou une entreprise spécialisée en rénovation afin de concevoir un projet conforme aux attentes et aux règles d’urbanisme.

Les Ă©tapes majeures de la rĂ©alisation d’un plan de surĂ©lĂ©vation de maison
La réussite d’une surélévation dépend largement d’un déroulement méthodique intégrant plusieurs phases clés. La première étape est souvent une étude de faisabilité technique menée par un expert. Cette analyse évalue la capacité des fondations et des murs porteurs à supporter le poids supplémentaire. Des diagnostics structurels approfondis sont effectués, permettant d’identifier les potentielles faiblesses, afin de prévoir les éventuels renforts indispensables.
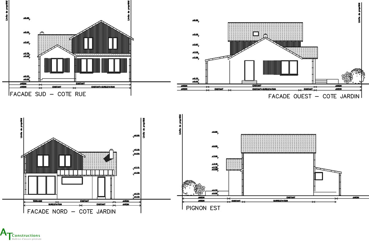
Une fois la faisabilité confirmée, la réalisation des plans détaillés prend le relais. L’architecte dessine alors une extension qui respecte les contraintes urbanistiques tout en maximisant l’usage de l’espace. Ces plans incluent non seulement la structure verticale, mais aussi la nouvelle toiture, les ouvertures pour la lumière naturelle, et l’emplacement des escaliers ou autres éléments de liaison entre les niveaux. Cette phase définit les volumes intérieurs et l’esthétique extérieure en harmonie avec le style architectural existant.
Parallèlement, les démarches administratives telles que la consultation du Plan Local d’Urbanisme (PLU) de la mairie et l’obtention des autorisations (déclaration préalable ou permis de construire) doivent être initiées. Ces formalités assurent la légalité du projet et son intégration dans le quartier. En Île-de-France, particulièrement à Paris, la complexité de ces démarches nécessite souvent un accompagnement professionnel afin d’éviter les retards.
Le chantier débute ensuite par la dépose de la toiture et les travaux de préparation de la structure. Le renforcement éventuel des fondations et des murs porteurs doit être exécuté avec rigueur, suivi par la construction de l’ossature de l’étage supplémentaire. L’isolation thermique et phonique est intégrée dès cette étape, répondant aux normes modernes sur l’efficacité énergétique. La pose de la toiture neuve, souvent réalisée en matériaux légers comme la tôle ou les panneaux sandwich, clôture la phase de gros œuvre.
Enfin, la phase de finition intègre les aménagements intérieurs, la mise en place des systèmes de chauffage ou ventilation, et la création des éléments de décoration. Cette maîtrise de bout en bout garantit un agrandissement clé en main répondant à toutes les attentes.
Choisir les matériaux adaptés pour votre surélévation : bois, acier ou béton ?
La sélection des matériaux est un axe capital dans l’élaboration du plan de surélévation et impacte à la fois le coût, la durée des travaux et la durabilité de l’extension.
Le bois est très apprécié pour sa légèreté, ce qui limite la nécessité de renforcement des fondations. Ce matériau naturel offre également une excellente isolation thermique, contribuant au confort intérieur et à la performance énergétique. Son esthétique chaleureuse peut être mise en valeur par des bardages ou des finitions modernes. Cependant, il demande un entretien régulier pour prévenir les risques d’humidité ou d’infiltration.
L’acier se distingue par sa résistance et sa capacité à porter des charges importantes tout en restant relativement mince. Cette solution permet de concevoir des plans audacieux, avec grande étendue de baies vitrées ou volumes ouverts. Néanmoins, l’acier est moins isolant naturellement et peut engendrer un surcoût. L’aspect contemporain qu’il confère à la construction peut être un choix esthétique à part entière.
Le béton, souvent choisi pour sa robustesse et sa longévité, est l’option la plus lourde en termes de charge. Une maison existante doit donc disposer de fondations solides, ou faire l’objet d’un renforcement préalable, pour supporter cette extension. Le béton permet de réaliser des structures très résistantes et une excellente isolation grâce à des bétons isolants spécifiques. Ce matériau offre une grande liberté architecturale et est particulièrement adapté aux projets visant une haute durabilité.
Pour harmoniser l’extérieur avec l’existant, différents revêtements peuvent être appliqués, notamment l’enduit, le bardage bois ou métallique, en fonction du style recherché et des règles d’urbanisme applicables. Selon votre projet, le recours à des matériaux mixtes permet souvent d’optimiser le rapport poids / résistance tout en maîtrisant le budget.
Découvrez les coûts spécifiques de la surélévation en bois pour mieux anticiper vos dépenses.

Les démarches d’urbanisme indispensables pour valider votre plan de surélévation
Avant de démarrer tout travail d’extension verticale, la consultation détaillée du règlement local d’urbanisme est impérative. Le Plan Local d’Urbanisme (PLU) détermine notamment la hauteur maximale autorisée pour la construction, les préconisations en matière de matériaux, et les éventuelles zones protégées. À Paris et en Île-de-France, ces règles prennent une importance capitale, particulièrement dans les quartiers anciens ou à proximité des monuments protégés.
En fonction de la surface créée, les démarches administratives varient : les projets sous 20 m² (ou 40 m² en zone PLU) nécessitent une simple déclaration préalable de travaux, tandis que les extensions plus importantes doivent faire l’objet d’un permis de construire. Ce dernier engage des délais plus longs, notamment s’il doit être validé par l’Architecte des Bâtiments de France dans les zones classées.
Une attention particulière doit être portée aux exigences liées à la pose d’échafaudages qui doivent parfois occuper partiellement l’espace public. Dans ces cas, il faut obtenir des autorisations spécifiques. La préparation minutieuse du dossier avec un architecte ou une entreprise spécialisée en renovation garantit le respect de toutes ces contraintes, évitant ainsi des refus ou recours qui pourraient retarder votre chantier.
Pour en savoir plus sur les règles d’urbanisme et autorisations en vigueur et sĂ©curiser votre projet.
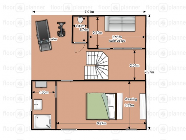
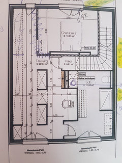
Optimiser l’agencement intérieur pour un nouvel étage fonctionnel et lumineux
Une fois l’ossature et la toiture installées, l’aménagement intérieur devient la clé pour valoriser pleinement cette nouvelle surface. Le plan d’agencement doit maximiser la circulation entre les étages, prévoir un escalier confortable qui prend en compte la taille des pièces et l’usage futur, et privilégier la luminosité naturelle.
Les ouvertures – fenêtres, velux, voire baies vitrées – sont cruciales pour donner luminosité et légèreté à cet étage supplémentaire. Leur implantation se fait souvent en lien avec le plan d’architecture afin de respecter la symétrie et l’harmonie de la façade. En termes d’espace, il est possible de prévoir des chambres supplémentaires, un bureau pour le télétravail, une salle de jeux ou même une suite parentale avec dressing et salle de bain intégrée.
Le plan intérieur doit aussi anticiper les aspects techniques : isolation acoustique pour assurer le calme, ventilations naturelles ou mécaniques, et intégration des réseaux électriques et sanitaires. La réalisation d’un espace sur-mesure garantit ainsi un équilibre entre confort, esthétique et fonctionnalité.

Budget et tarifs pour un plan de surélévation : évaluer le coût global de votre projet
Le coût d’un projet de surélévation varie selon plusieurs critères essentiels liés à la technique, aux matériaux et à l’envergure des travaux. Les tarifs se situent en général entre 1 200 € et 3 000 € par mètre carré en clé en main, incluant à la fois le gros œuvre, l’isolation et les finitions. Le choix d’une ossature en bois sera souvent un peu moins onéreux qu’une structure en béton, tandis que l’acier pourra faire grimper la facture selon la complexité architecturale.
| Matériau | Coût moyen (€/m²) | Avantages | Contraintes |
|---|---|---|---|
| Bois | 1 200 – 2 000 | Léger, isolant naturel, installation rapide | Entretien régulier, sensibilité à l’humidité |
| Acier | 1 800 – 3 000 | Résistant, design moderne | Coût élevé, isolation à prévoir |
| Béton | 2 000 – 3 000 | Robuste, durable | Poids, nécessité de renforcer fondations |
Au-delà des matériaux, des coûts supplémentaires peuvent apparaître en fonction des démarches administratives, des contraintes d’accès ou encore des finitions spécifiques demandées. Il est conseillé de comparer plusieurs devis et de solliciter des professionnels spécialisés pour obtenir une estimation précise et détaillée. Par ailleurs, certaines aides financières dédiées à la rénovation énergétique peuvent alléger le budget final.
Consultez les tarifs spécifiques des surélévations à Paris et Île-de-France pour mieux planifier votre investissement.
Garantir la conformité et la durabilité de votre projet de surélévation en Île-de-France
La conformité aux normes techniques et urbanistiques est un enjeu fondamental pour que votre projet de surélévation soit non seulement légal, mais aussi durable et sécuritaire. Les structures doivent répondre aux exigences parasismiques, à la règlementation thermique en vigueur (RT 2020) et aux normes d’accessibilité. Un contrôle rigoureux est effectué tout au long du chantier par les professionnels impliqués, assurant que les travaux respectent les plans validés et la qualité attendue.
Pour les propriétaires, la déclaration de la surface supplémentaire auprès des services fiscaux s’impose après travaux, entraînant une mise à jour de la taxe foncière et de la taxe d’habitation. La déclaration à l’assureur est également indispensable pour que votre contrat habitation intègre ce nouvel espace.
Enfin, la collaboration avec une entreprise familiale experte en rénovation sur Paris et Île-de-France, à l’image de Watt+ Père & Fils, garantit un accompagnement personnalisé, un suivi précis des délais et une maîtrise parfaite des normes. Ce partenariat professionnel assure sérénité et qualité tout au long de votre projet.
Faites appel à Watt+ Père & Fils, expert en rénovation et surélévation clés en main pour un projet sans surprise.
Simulateur de coût de surélévation
Exemples concrets de plans de surélévation et de réalisations réussies
Des projets diversifiés illustrent parfaitement la flexibilité offerte par la surélévation. Par exemple, une maison parisienne des années 1960 a vu son plan transformé par une extension bois partielle, créant une chambre d’amis et un bureau lumineux accessible par un escalier en colimaçon. Cette intervention a permis d’apporter une nouvelle dynamique à l’intérieur sans modifier ni le jardin ni la façade principale.
Dans une autre réalisation en banlieue Île-de-France, un étage complet en structure béton a été ajouté sur une villa existante, doublant ainsi la surface habitable et permettant un aménagement sur-mesure avec suite parentale, dressing et salle de bain privée. Ce projet a nécessité un renforcement important des fondations initiales mais a fortement valorisé le bien immobilier, faisant augmenter son prix de revente de plus de 20 %.
Les contraintes liées à l’urbanisme dans les lotissements ont impliqué des adaptations architecturales fines, notamment dans le choix des matériaux et des couleurs, afin de conserver l’harmonie du quartier. Ces projets témoignent de l’adaptabilité des plans de surélévation à de nombreuses configurations.
Découvrez plus de réalisations et plans de surélévation adaptés à vos besoins pour vous inspirer.
Avantages stratégiques de la surélévation face aux autres extensions
Alors que de nombreuses options d’agrandissement existent, la surélévation de maison offre des bénéfices économiques, pratiques et esthétiques souvent supérieurs. Contrairement à une extension latérale, elle ne touche pas à la surface du terrain, préservant le jardin ou l’espace extérieur, ce qui est un atout majeur dans les zones urbaines densément peuplées.
De plus, la surélévation permet souvent de mettre à niveau la performance énergétique de la maison, en remplaçant une toiture ancienne par une construction isolée avec des matériaux modernes et performants. Ce double avantage de contribuer au confort intérieur tout en valorisant le bâti en fait une solution très prisée.
Dans une perspective patrimoniale, la création d’un étage supplémentaire accroît la valeur de revente du bien de 10 à 30%, selon la qualité du projet et des finitions. Enfin, la surélévation bénéficie d’un cadre réglementaire adapté qui facilite souvent les procédures, surtout si le projet est bien encadré par des professionnels qualifiés.
En savoir plus sur l’intérêt d’une extension verticale par surélévation pour mieux orienter votre choix.
Quelles sont les principales contraintes pour réaliser une surélévation ?
Les contraintes concernent la solidité des fondations, les règles d’urbanisme locales, la hauteur maximale autorisée et la faisabilité technique. Une étude précise avant projet est nécessaire.
Quel budget prévoir pour une surélévation clé en main ?
Le budget moyen oscille entre 1 200 et 3 000 euros par m² selon les matériaux et la complexité des travaux. Il est préférable de demander plusieurs devis détaillés.
Faut-il un architecte pour un projet de surélévation ?
Oui, un architecte est obligatoire dès que la superficie créée dépasse 150 m². Même au-dessous, il est conseillé d’en consulter un pour assurer qualité et conformité.
Peut-on habiter la maison pendant les travaux ?
Cela dépend de l’importance du chantier. Souvent, il est possible d’habiter en aménageant les zones de chantier et en respectant les consignes de sécurité.
Quelles aides financières existent pour la rénovation énergétique lors d’une surélévation ?
Des aides comme l’éco-prêt à taux zéro ou des subventions locales peuvent aider à financer les améliorations énergétiques réalisées pendant la surélévation.























